Cube Türsystem
System - Genial einfach; einfach genial.
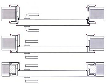
![]() |
Konventionelles Element < 10 Kanten > |
| Cube Element Flächenverbund Tür und Zarge < 6 Kanten > |
|
| Cube Element Flächenverbund Tür, Zarge, Wand < 2 Kanten > |
Reduktion der Form
Die Flächenbündigkeit von Tür und Zarge, sowie die Option des
wandbündigen Einbaus bestimmen die puristische Form.
Das auf das Wesentliche reduzierte Zierfutter ist Bestandteil dieser Form.
Die Querfurnierung von Tür, Zarge und allen Kanten prägen diese Form.
Die Nutzung verdeckter Bandsysteme und der Wegfall der Schlüssellochbohrung unterstreichen diese Form.
PURISTISCH; KUBISTISCH
Funktion - Technische Innovation; innovative Technik.
1. Verdeckt liegendes, dreidimensionals Bandsystem.
2. Feinjustierbares Edelstahlschließblech.
3. Komfortschloss mit Flüsterfalle und Endelstahlstulp, Schlüsselloch jederzeit nachbohrbar.
4. Zweischaltiges Zargensystem ist auf jede Wandstärke kürzbar - chemiefreie Montage möglich.
5. KTM-Glastürband

